• Gallery
    • All Disciplines
    • Communication Design
    • Communication Design (Honours)
    • Photomedia
    • UX Interaction Design
    • Motion Design
    • Branded Environments
    • Bachelor of Design (Architecture)
    • Industrial Design
    • Interior Architecture
    • Product Design Engineering
    • Architectural Engineering
    • Master of Architecture & Urban Design
    • Design Strategy & Innovation
    • Master of Design
    • Design Factory Melbourne
    • Postgraduates
  • Awards
  • PodX
  • Sponsors
  • Contact

Gallery

Interior Architecture

  • Back to all Students

Ngoc (Nina) Dang

  • Email Address
  • LinkedIn

Ngoc (Nina) Dang is a Vietnamese designer with a multidisciplinary background that spans photography, interior design, architecture, and film. Her work is driven by a human-centered approach, whether shaping physical spaces or visual narratives, she focuses on the lived experiences of people. Ngoc believes art is a tool to connect, reveal, and respond meaningfully to the world around us.

Exterior View

Anchored in simplicity and lightness, the exterior blends naturally with the surrounding houses while maintaining flood resilient.

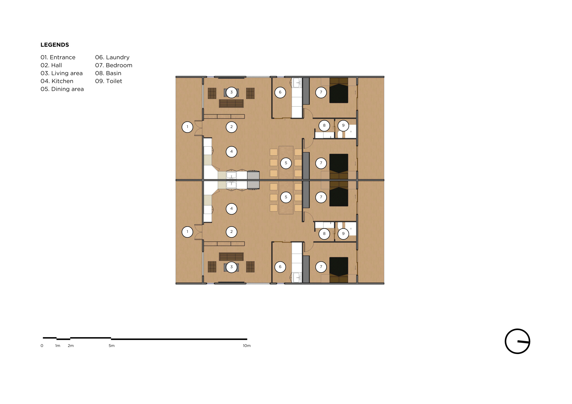
Ground Floor Plan

Type: Twin House
6-8 Leopold Street, Maribyrnong, VIC 3032
2 beds - 1 bath
Moderately vulnerable area
Highest flood level: 2m
Area: 432m²

Axonometric

The axonometric illustrates flood resilient features that help people maintain normal living conditions during floods. Constructive structure underneath allows the house to raise up when floods come and remains on land when it is dry.

Living Area

Moment of stillness and coziness in a living area. An open and flexible space can encourage connection and adaptability. The use of large glazed openings bring in natural light and provide visual continuity with the outdoors.

Bedroom

A minimal and calm bedroom using warm timber tones promotes a sense of security and tranquility during uncertain flooding conditions.

Links

  • Student Login

Get in Touch

  • Follow us on Instagram

Become a Sponsor

  • Visit our Eventbrite page

Acknowledgements

  • Swinburne School of Design
    ©2026 | All Rights Reserved
  • Website by PeptoLab

Acknowledgement of Country

The School of Design and Architecture respectfully acknowledges the Wurundjeri peoples of the Kulin Nation as the Traditional Owners and knowledge-keepers of the lands, waters and sky that surround us, where we work, learn, create, communicate and make place. We recognise that sovereignty has never been ceded and this always was and will always be Wurundjeri Country. We pay our respects to Elders past, present and to all Aboriginal and Torres Strait Islander people who continue to make a better world through design.

We extend our acknowledgement to the Aboriginal and Torres Strait Islander staff, students, alumni, real-life clients, and knowledge keepers, who have contributed to our own education diversity and growth. We will continue to ensure that staff and students respectfully honour ancestral connection to Country and Place in everything that they do.

We are dedicated to the notion of design to make a better world and we acknowledge that making tools, shaping place, sharing stories, making meaning, wayfinding and collaborating have long been and continue to be both central and integral to First Peoples' cultures. We recognize that Aboriginal and Torres Strait Islander Peoples’ cultural contributions have continued relevance to design practice and commit to: reconciling ancestries of design and contemporary practice as well as pursuing culturally and professionally appropriate ways to engage with a diverse population of colleagues, industries and clients. In a time of treaty-making and voice we understand that there are overlaps between caring for Country and the sustainable production of goods, services, experiences, products and buildings.

Guided by the principles of respect, reconciliation, and reciprocity we undertake to indigenising and decolonising design practice by dismantling colonial structures and challenging biases that have marginalised Indigenous voices and design.

As students of SoDA you will be given opportunities to both engage with and educate yourself in Indigenous creative practices and cultural protocols through a lens of inclusivity, diversity, respect, mutual understanding, inter-cultural dialogue in all aspects of design practice. Indigenous people have been telling stories, making tools, and connecting to Country through visual media, placemaking and place marking for more than 60,000 years and these practices are part of an ongoing, evolving and live tradition.